Alta 8-14

En construcción


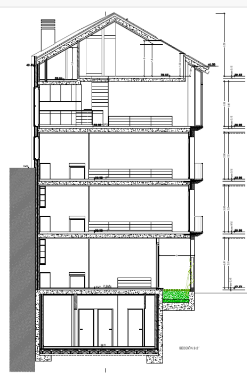
La primera intervención del Consorcio Casco Vello de Vigo en esta calle permitirá, tras la agrupación de varios solares adquiridos previamente, la incorporación a la zona de cinco nuevas familias en viviendas de dos o tres dormitorios.

VIVIENDAS

5

M2 CONSTRUIDOS

734

PATIOS

39,30

Proyecto

Javier Vázquez Fernández

ASCENSOR

Si

TRASTERO

Si

ESTADO

Adjudicación obras 4-03-2026

Vivienda 1 (Planta Baja)

2D + S.C.C. + 2B + LT / (88,60 m² + 19,70 m² ext)

Vivienda 2 (1º)

3D + S.C.C. + 2B + LT / (113,50 m² + 1,00 m² ext)

Vivienda 3 (2º)

3D + S.C.C. + 2B + LT / (113,50 m² + 3,90 m² ext)

Vivienda 4 (3º A)

3D + S.C.C. + 2B + LT / (93,20 m² + 6,90 m² ext)

Vivienda 5 (3º B)

3D + S.C.C. + 2B + LT / (69,15 m²)

Trasteros correspondientes a las viviendas: 5,7 m² / 6,00 m² / 7,50 m² / 7,70 m² / 4,60 m²

This site is registered on wpml.org as a development site. Switch to a production site key to remove this banner.